Whispering Pines

Custom Homes

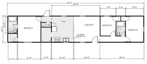
planA

Bookmark the permalink.

© 2021 Lakeshore Communities. All rights reserved.